門扉カラクリ
「門扉カラクリ」は上州から越後地方にかけて伝えられていたカラクリ仕掛けの一方式で、江戸時代中期頃から存在していたと見られる。その名のとおり、門や扉を開閉させて出来る組み合わせを利用して、物や人の流れに何らかの制御を加える機構のことをいう。
何列かの領域を均等に定め、そのそれぞれに対しある特定の配列に開口をつくる。さらに全ての列に対して配置された門扉状の組をつくり、それらが対となり一つの制御単位として働く。
門扉の組を前後に配置し、どちらかを上下、または左右に動かす。そこで、全閉状態と特定の配列の開口を持つ状態の二状態が、一つの制御単位に対し得られる。
この二状態により、具体的な制御が人や物の流れに与えられる。制御単位を二段、三段と重ね、さらに複雑な制御を加えることも可能になる。
上州から越後にかけては、精密な機構の機織り機による織物産業が盛んであった。そのためさまざまなカラクリ仕掛けによる装置が考案されていた。それらは実用的な装置はもちろん、人形浄瑠璃の傀儡(くぐつ)や農村歌舞伎の舞台装置などにも及んでいた。
群馬県赤城村の上三原田歌舞伎舞台には、カラクリ仕掛けで動く舞台装置が組み込まれている。
やはり織物の盛んな桐生市には、江戸芝居カラクリの流れをくむ、桐生からくり人形が残されている。
徳島県の農村歌舞伎に、「襖カラクリ」と呼ばれる舞台装置が伝わっている。襖に描かれた背景画を次々に入れ替え、いくつもの場面を作り出すことができる。
襖の開閉を利用したカラクリ仕掛けという共通点はあるが、門扉カラクリとの関係は今の所よく分からない。
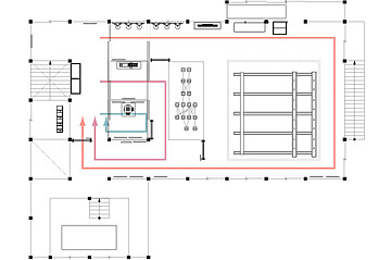
前後2重になった襖の開閉は、XYに関してそれぞれ2通りの開閉パターンをつくる。
後方の襖3枚は固定されており、そこへの入力に対する出力に対応したている。
前方3枚は互いに連結され、連動してスライドする。
右へ1区画動かすとそこへの0入力を意味し、左へ動かすとそこへの1入力を意味する。
そのXYの襖を直列に配置すると、全体として4通りの開閉パターンの組となり、人が通り抜けられる順路が決定される。
*この図では右にX,左にYの襖を配置している。
襖を開けて入場できる入口は3個所ある。
中を通り抜けた後の動線は間仕切りで制限され、鑑賞者の順路が変わってくる。
Monpi-karakuri
The Monpi-karakuri was a type of device introduced in the area running from the Joshu to the Echigo regions, and they
seem to have existed since the mid-Edo period.
Using a combination of opening and closing of gates and doors, it allowed one to exercise a certain form of control on flows of goods or humans.
At the time, the textile industry was flourishing in the area covering the Joshu and Echigo regions, based on very precise looms. Therefore a variety of devices were developed. They included not only practical ones but also puppets for Ningyo Joruri (Japanese puppet shows) and stage settings for rural Kabuki theaters.
kimurayoshikuni.com


